Appartamento in vendita

Via Michelangelo Miroddi - Pace del Mela

€ 75.000

+10

  • Condividi

  • Whatsapp

  • Appartamento
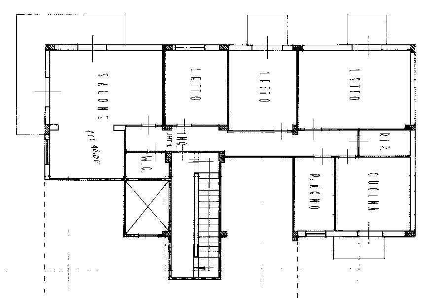
  • Mq: 151
  • Vani: 5 vani
  • Bagni: 2

Descrizione

Ampio Appartamento in Vendita a Giammoro – 5 Locali, 151 mq. In zona tranquilla e ben servita di Giammoro, proponiamo in vendita un luminoso appartamento di 151 mq, situato al primo piano di un piccolo stabile, senza ascensore. L’immobile si presenta in buone condizioni e offre ampi spazi interni, perfetti per una famiglia numerosa o per chi cerca comfort e funzionalità: Ingresso su corridoio, cucina abitabile, soggiorno doppio molto spazioso e luminoso, camera matrimoniale, due camere da letto aggiuntive, ripostiglio, due bagni, quattro balconi ideali per godere di luce naturale e spazi all’aperto. Costruito nei primi anni ’80, l’appartamento è una soluzione abitativa ideale, grazie alla disposizione funzionale degli ambienti e alla metratura generosa. Contattaci per maggiori informazioni o per organizzare una visita!

Dettagli immobile

  • Rif :

  • Prezzo :

  • Mq :

  • Anno :

  • Arredato :

  • 09/25

  • € 75.000

  • 151

  • 1980

  • no

  • Bagni :

  • Balconi :

  • Garage :

  • Posto auto :

  • Locazione :

  • 2

  • 4

  • 0

  • 0

  • n.d.

Descrizione energetica

  • Classe energetica: F
  • IPE: 111.73 kWh/m² anno

Caratteristiche

Mappa Via Michelangelo Miroddi - Pace del Mela

Annunci simili

Vendita

Appartamento

Pace del Mela